Property ID : 50198920
$888,000 - Single Family
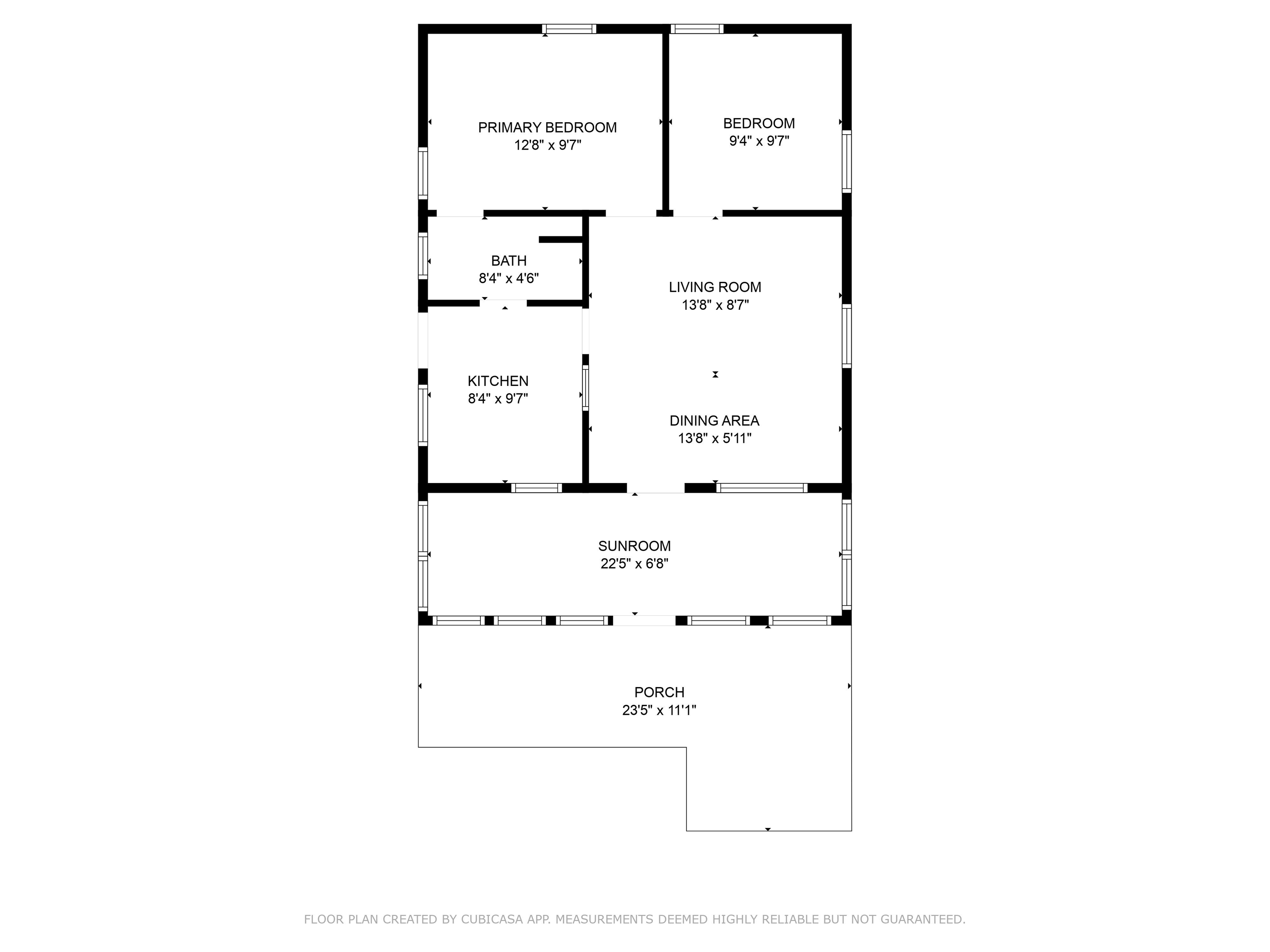
Create a one-of-a-kind family retreat on all-sports Long Lake with 256 feet of sandy frontage and 3.23 acres of peaceful northern Michigan setting. Multiple charming, furnished cabins allow each family or guest group to enjoy their own private space while sharing lake days, evening gatherings, and beautiful water views. The property has been lovingly maintained and updated in 1986 and again in 2024, and is ready for new memories in 2026 and beyond. Features include a floating swim dock, secure boat dock, waterside storage shed, shaded deck beneath mature trees, second garage, expanded waterfront, and room for a large garden. Sleeping arrangements include Stone Cottage and Sunflower Cottage (sleep 6 each), Sugarberry (sleeps 3), and Captain’s Quarters (sleeps 10). A rare opportunity to establish a lasting Up North legacy with space for generations to gather. 123 W Long Lake (sleeps 4) is also available, see MLS 50186629




































































































